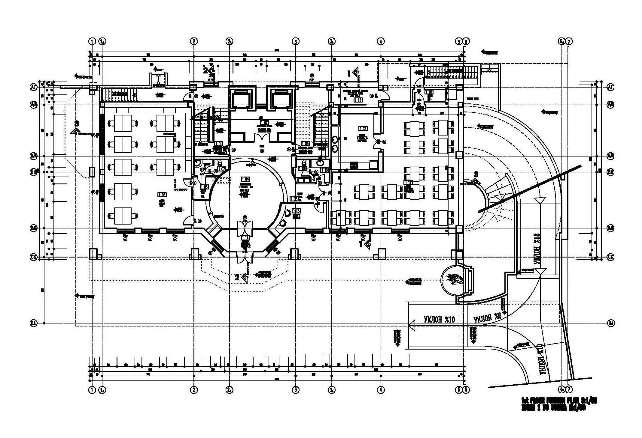
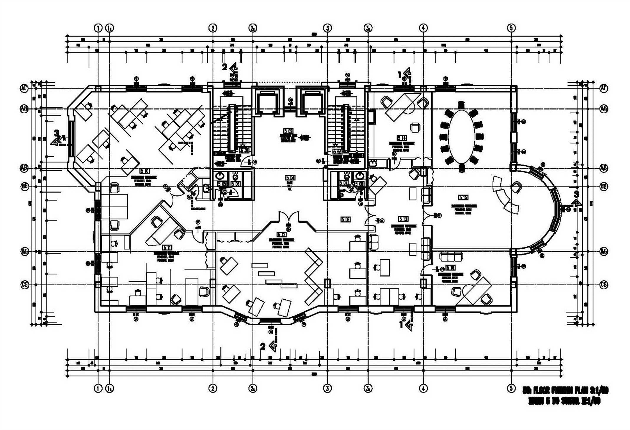
PROJECT

MVKS Office Building

MVKS OFİS BİNASI MVKS OFİS BİNASI MVKS OFİS BİNASI

MVKS Office Building

Moscow/ Russian Federation

7 000 m²

BOYUT MİMARLIK '84 | BOYUT ARCHITECTURE '84| Боют Мимарлык’84

ÇANKAYA MAH.PROF.DR.AZİZ SANCAR CADDESİ 5/9 06680 ÇANKAYA/ANKARA/TÜRKİYE TEL:+90 312 440 88 88 FAX: +90 312 440 77 77 E-MAIL: boyuta@boyuta.com.tr

 

 ©2018 ALL RIGH RESERVED